海灣火災自動報警系統(tǒng)技術指導——GST9121B手動報警按鈕接線說明
海灣火災自動報警系統(tǒng)技術指導——GST9121B手動報警按鈕接線說明

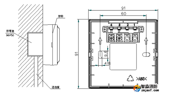
海灣J-SAM-GST9121B手動火災報警按鈕外形示意圖如下

手動火災報警按鈕外接端子示意圖如下

其中:
Z1、Z2:無極性信號二總線接線端子。
布線要求:Z1、Z2可選用截面積不小于1.0mm2的RVS雙絞線。
手動火災報警按鈕安裝時只需拔下報警按鈕,從底殼的進線孔中穿入電纜并接在相應端子上,再插好報警按鈕即可安裝好報警按鈕,安裝孔距為60mm。報警按鈕安裝采用預埋盒安裝方式,如下圖所示。

海灣消防安全有限公司主營:GST海灣消防報警設備銷售,消防工程施工改造,氣體滅火、電氣/漏電火災、消防水系統(tǒng)施工安裝,售后維修保養(yǎng),檢測,調試,海灣消防網站:http://m.zjgznjx.com/;海灣消防服務熱線:4006-598-119
本頁關鍵詞:
技術資料更多 >>


蘇公網安備32058102002148號